Unit E - 2103 Converse

3892 AC Square Feet
6360 Total Square Feet

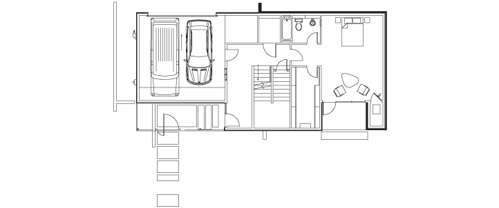
First Floor

First Floor Layout of 2103 Converse
Keys
  • Porch
  • Closet
  • Bedroom/Office
  • Bathroom
  • Entry
  • Storage (x2)
  • Storage/Elevator
  • Private Entry
Features
  • Venatino Marble Counters and Caesar Stone Floors
  • Covered Balconies
  • First Floor Bedroom / Office
  • Dramatic Entry
  • Heated Spa/Pool
  • 10 Foot Ceilings
  • Private Gardens
  • 8 Foot Privacy Fence
  • Tankless On-Demand Hot Water Systems

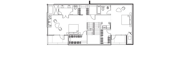
Second Floor

Second Floor Layout of 2103 Converse
Keys
  • Balcony
  • Living Room
  • Dining Room
  • Pantry
  • Storage/Elevator
  • Powder Room
  • Kitchen
Features
  • Walnut Wood Floors
  • 10 Foot Ceilings
  • GE Monogram Appliances
  • Fireplace
  • Walnut European Style Cabinets
  • Venatino Marble Counter Tops and Caesar Stone Floors
  • Covered Balconies with City Views

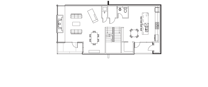
Third Floor

Third Floor Layout of 2103 Converse
Keys
  • Balcony
  • Master Closets
  • Master Bathroom
  • Master Bedroom
  • Storage/Elevator
  • Closet
  • Bathroom
  • Bedroom
Features
  • Walnut Wood Floors
  • Covered Balcony
  • Architectural ACME Brick
  • Commercial Metal Siding
  • Commercial Low E Windows
  • 10 Foot Ceilings
  • Walnut European Style Cabinets
  • Dramatic Fireplace
  • Duel Head Rain Shower with Soaking Tub.

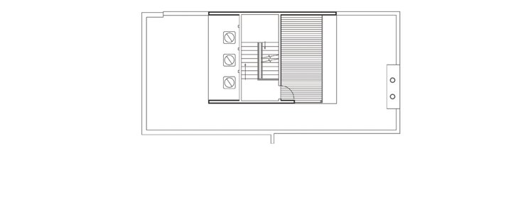
Roof Terrace

Roof Terrace Layout of 2103 Converse
Keys
  • Parapet Roof System
Features
  • Covered Deck