Unit C - 2106 Converse - SOLD

6974 Square Hundred Feet

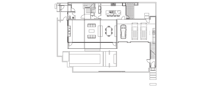
First Floor

First Floor Layout of 2106 Converse
Keys
  • Private Entry
  • Entry
  • Pantry
  • Powder Room
  • Kitchen
  • Pool
  • Living Room
  • Dining Room
  • Garage
Features
  • Covered Front Entry
  • Covered Balconies
  • Concrete Floors
  • Living Room Opens to Pool
  • GE Monogram Appliances
  • Marble Counter Tops
  • 12 Foot Ceilings
  • Fireplace
  • Walnut European Style Cabinets

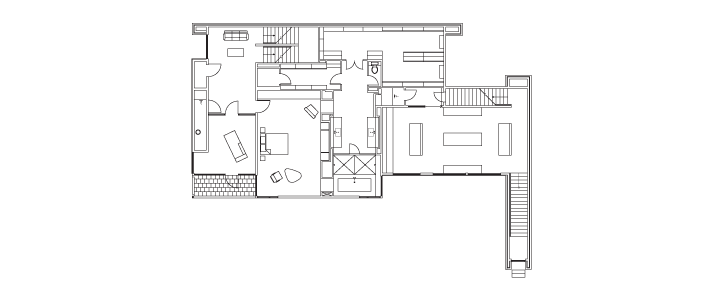
Second Floor

Second Floor Layout of 2106 Converse
Keys
  • Closet
  • Landing
  • Balcony
  • Study
  • Master Closets
  • Master Bathroom
  • Master Bedroom
  • Studio
Features
  • Covered Front Entry
  • Covered Balconies
  • Walnut Wood Floors
  • Custom Designed Furniture
  • Fireplace in Master Bath
  • Marble Counter Tops
  • 10 Foot Ceilings
  • Fireplace in Master
  • European Style Cabinets

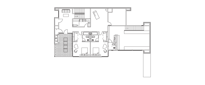
Third Floor

Third Floor Layout of 2106 Converse
Keys
  • Storage
  • Balcony
  • Utility Room
  • Closet
  • Music Room
  • Bedroom (x2)
  • Closet
  • Bathroom (x3)
  • Media Room
  • Studio
Features
  • Covered Front Entry
  • Covered Balconies
  • Carpeted Floors
  • Custom Designed Furniture
  • Fireplace on Balcony
  • 10 Foot Ceilings
  • Walnut European Style Cabinets