Unit B - 2107 Converse

4104 AC Square Feet
6961 Total Square Feet

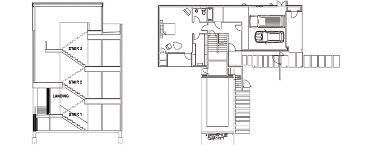
First Floor

First Floor Layout of 2107 Converse
Keys
  • Private Entry
  • Porch
  • Entry
  • Garage
  • Storage / Elevator
  • Pool
  • Closet
  • Bathroom
  • Bedroom / Office
Features
  • Venatino Marble Counters and Caesar Stone Floors
  • Dramatic Covered Front Entry
  • Structured Slab on Piers Foundation
  • First Floor Bedroom / Office
  • Unique Heated Pool
  • 10 Foot Ceilings
  • Private Gardens
  • 8 Foot Privacy Fence
  • Tankless On-Demand Hot Water Systems

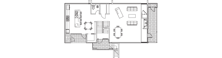
Second Floor

Second Floor Layout of 2107 Converse
Keys
  • Storage / Elevator
  • Balcony
  • Powder Room
  • Pantry
  • Kitchen
  • Dining Room
  • Living Room
Features
  • Covered Balconies
  • Walnut Hardwood Floors
  • Living Room Opens to Pool
  • GE Monogram Appliances
  • 10 Foot Ceilings
  • Fireplace
  • Walnut European Style Cabinets
  • Venatino Marble Counter Tops and Caesar Stone Floors

Third Floor

Third Floor Layout of 2107 Converse
Keys
  • Balcony
  • Storage / Elevator
  • Master Closet (x2)
  • Closet
  • Bathroom
  • Bedroom
Features
  • Covered Balconies
  • Walnut Hardwood Floors
  • Architectural ACME Brick
  • Commercial Metal Siding
  • 10 Foot Ceilings
  • Fireplace in Master Bedroom
  • Walnut European Style Cabinets
  • Commercial Low E Windows

Roof Terrace

Roof Layout of 2107 Converse
Keys
  • Parapet Roof System
Features
  • Covered Deck